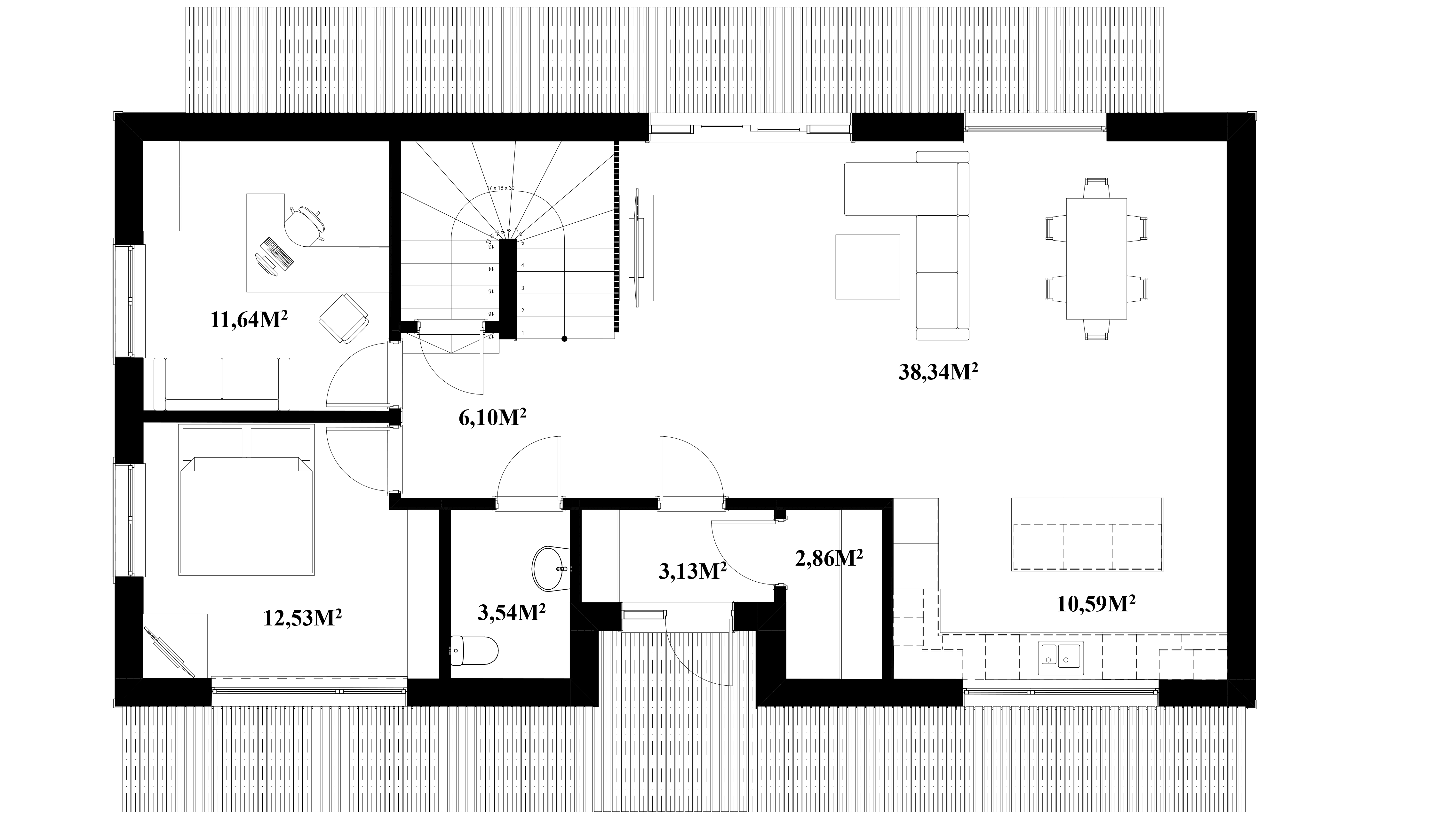
LIPSK PIĘTROWY
LIPSK
PIĘTROWY
- Projekt domu
- Konstrukcja stalowa IPE 160
- Strop z płyty Duripanel
- Wykonanie dachu oraz ścian zewnętrznych z elewacją domu
- Stolarka zewnętrzna – okna 3 szybowe (jednostronny kolor), oraz drzwi zewnętrzne
-
- Standard podstawowy
- Izolacja ścian oraz dachu wdmuchiwaną Celulozą.
- Wylanie posadzki
- Instalacja wodno-kanalizacyjna + C.O
- Instalacja elektryczna
- Zabudowa ścian wewnętrznych oraz działowych z ogniochronnych płyt.
Skontaktuj się z nami
Biuro obsługi
klienta










