Dom S2
STALOVERS S2
To nowoczesny dom typu stodoła, obok którego sąsiedzi na pewno nie przejdą obojętnie. Połączenie odcieni drewna z modną, ciemną elewacją i dachem w stylu tzw. rąbka, z całą pewnością zwróci na siebie uwagę.
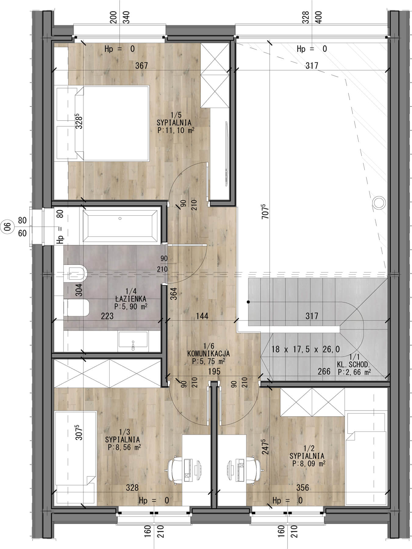
Podobnie jak w przypadku całej serii ‘S’, rozkład pomieszczeń zostal zaprojektowany z nastawieniem na poszanowanie prywatności każdego z mieszkańców. Znajdziemy w nim między innymi gabinet do nauki i pracy zdalnej, trzy sypialnie, salon z jadalnią, oddzielną kuchnię, spiżarnię oraz 2 łazienki.
Powierzchnia „Po podłodze”: 111,15 m2
Powierzchnia użytkowa: 105,34 m2
Powierzchnia zabudowy: 81,43 m2
Wymiary budynku: 10,36 m x 7,86 m
Powierzchnia użytkowa: 105,34 m2
Powierzchnia zabudowy: 81,43 m2
Wymiary budynku: 10,36 m x 7,86 m
- Projekt domu
- Konstrukcja stalowa IPE 160
- Strop z płyty Duripanel
- Wykonanie dachu oraz ścian zewnętrznych z elewacją domu
- Stolarka zewnętrzna – okna 3 szybowe (jednostronny kolor), oraz drzwi zewnętrzne
- Standard podstawowy
- Izolacja ścian oraz dachu wdmuchiwaną Celulozą
- Wylanie posadzki
- Instalacja wodno-kanalizacyjna + C.O
- Instalacja elektryczna
- Zabudowa ścian wewnętrznych oraz działowych z ognioochronych płyt Siniat
Przyda Ci się kredyt na budowę domu lub zakup działki?
Powierzchnia
„po podłodze”:
111,15 m2
Metraż powierzchnia użytkowa:
105,34 m2
Ilość pokoi łącznie z salonem:
5
Wysokość pomieszczeń:
2,79 m
Wysokość budynku:
8,21 m
Minimalne wymiary działki:
15,9 m
x 21,1 m
Skontaktuj się z nami
Biuro obsługi
klienta







