Dom A1
-
STALOVERS A1
Jest to zdecydowanie rozsądny wybór. Zoptymalizowana wersja energooszczędnego domu S1, z racji mniejszej powierzchni zabudowy (do 70 m2) oraz optymalnym zagospodarowaniu poddasza, pozwala na wzniesienie go na mniejszych działkach, bez pozwolenia na budowę!
Podobnie jak w przypadku innych naszych domów, budynek cechuje się znakomitym doświetleniem wnętrz, wyjątkowym wyciszeniem, oraz obniżonym kosztem utrzymania obiektu. Funkcjonalnie zaprojektowane wnętrza zapewniają wysoki komfort, prywatność oraz niezbędną przestrzeń dla wszystkich jego mieszkańców.
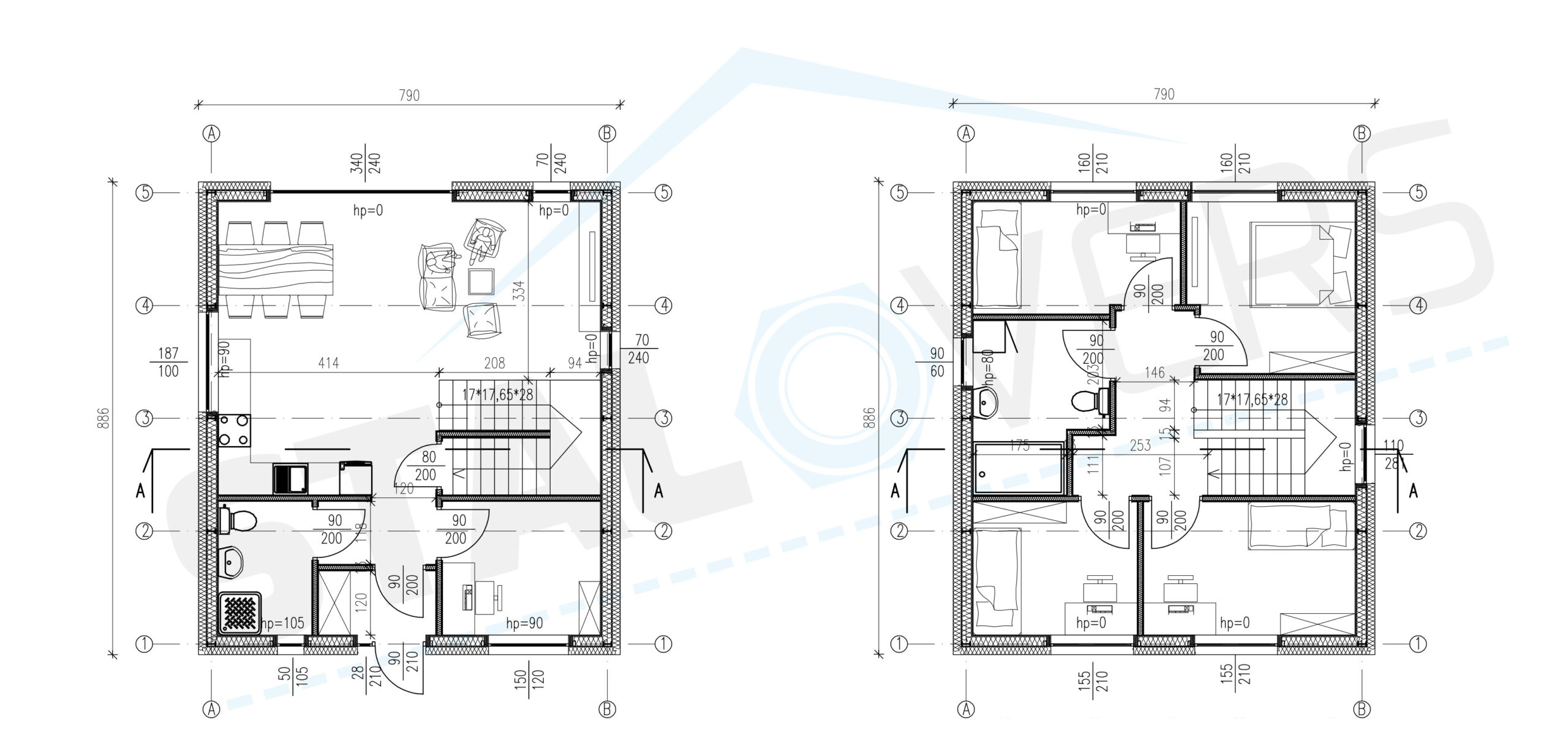
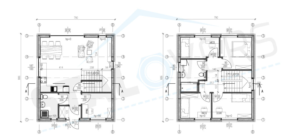
Powierzchnia „Po podłodze”: 116,14 m2
Powierzchnia użytkowa: 100,09 m2
Powierzchnia zabudowy: 69,99 m2
Wymiary budynku: 7,90 m x 8,86 m
- Projekt domu
- Konstrukcja stalowa IPE 160
- Strop z płyty OSB
- Wykonanie dachu oraz ścian zewnętrznych z elewacją domu
- Stolarka zewnętrzna – okna 3 szybowe (jednostronny kolor), oraz drzwi zewnętrzne
- Standard podstawowy
- Izolacja ścian oraz dachu Pianą PUR
- Wylanie posadzki
- Instalacja wodno-kanalizacyjna + C.O
- Instalacja elektryczna
- Zabudowa ścian wewnętrznych oraz działowych z ogniochronnych płyt GK
Przyda Ci się kredyt na budowę domu lub zakup działki?
Powierzchnia
„po podłodze”:
115,66 m2
Metraż powierzchnia użytkowa:
99,7 m2
Ilość pokoi łącznie z salonem:
6
Wysokość pomieszczeń:
2,79 m
Wysokość budynku:
8,21 m
Minimalne wymiary działki:
15,9 m
x 21,1 m
Skontaktuj się z nami
Biuro obsługi
klienta




