Haus L1
STALOVERS L1
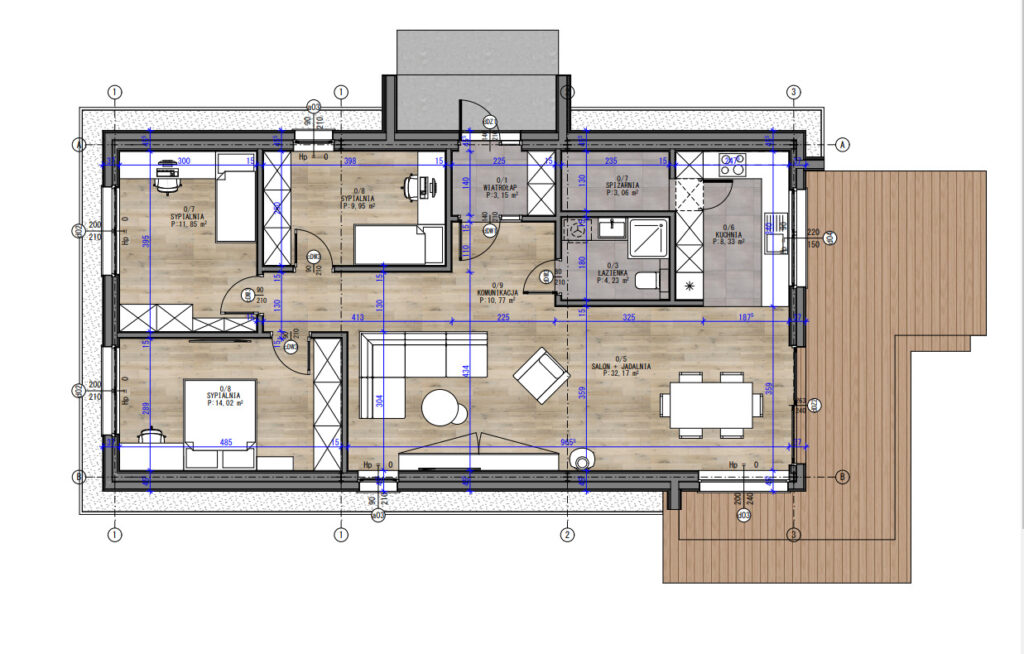
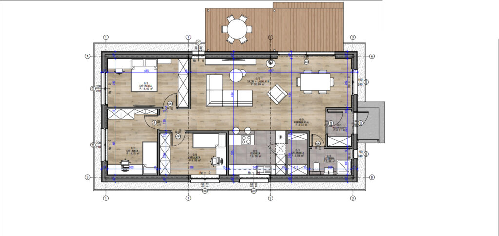
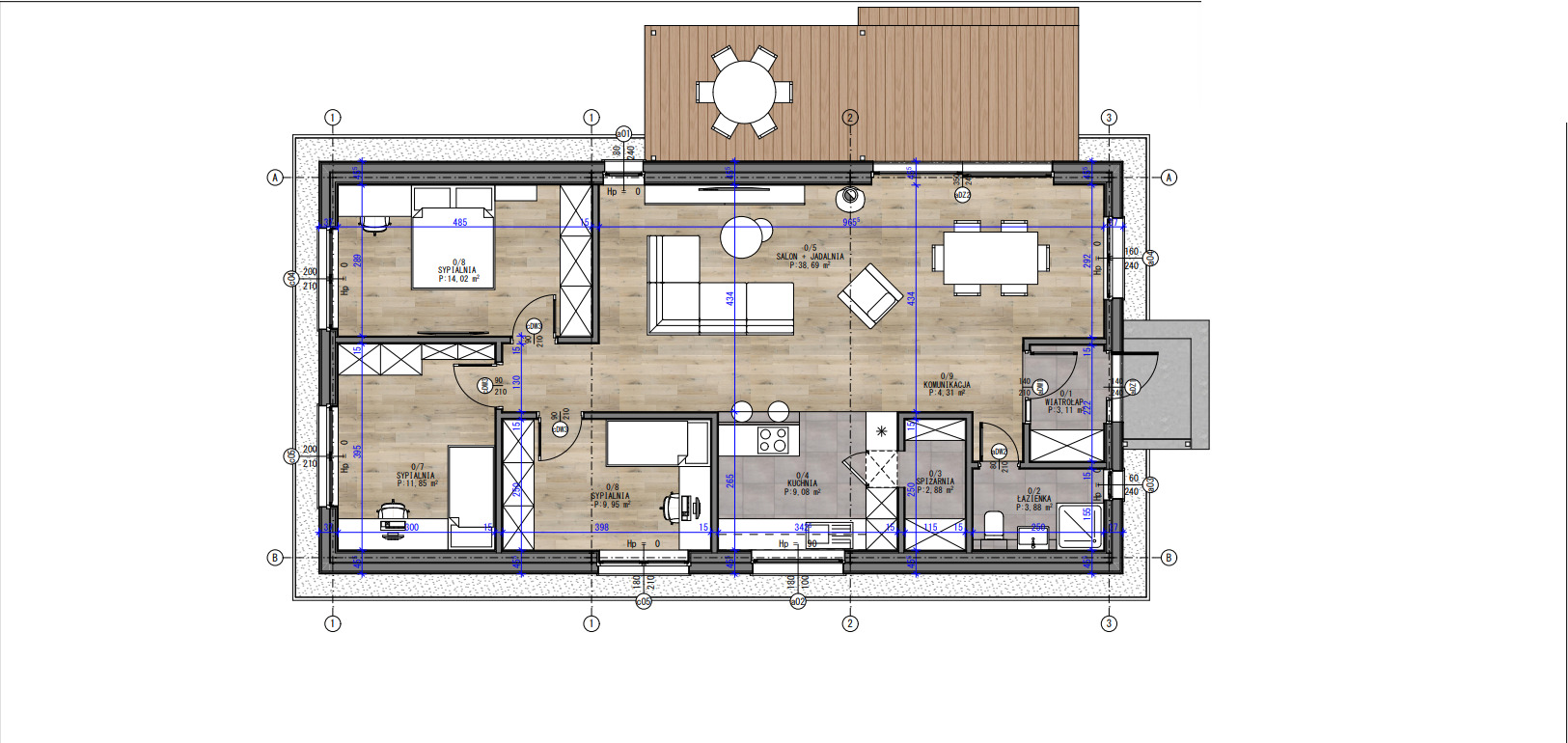
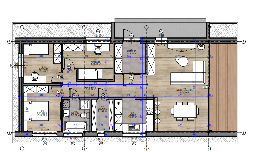
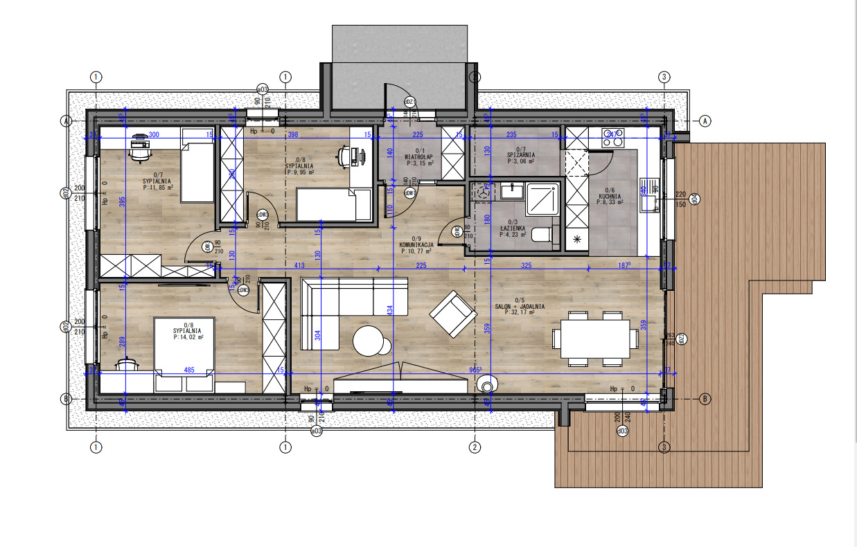
Ist ein attraktiver Vorschlag für ein energieeffizientes, ebenerdiges Haus mit einer Fläche von 98,15 m2.
Basierend auf einer klassischen Form und einer durchdachten Raumaufteilung für die ganze Familie.
Die Fassade des Gebäudes und die Terrasse sind mit dekorativen Elementen verziert, die die Verbundenheit zur Natur symbolisieren und sich auf die umgebende Landschaft beziehen.
Sowohl auf der Terrassenseite als auch an der Vorderseite des Gebäudes wurden große, stilvolle Fenster verwendet, die das Innere des Gebäudes perfekt beleuchten.
Im Inneren finden Sie Platz für drei Schlafzimmer, ein Wohnzimmer mit Küchenzeile, ein Badezimmer, eine Windfang und eine Speisekammer, was es zu einer praktischen und komfortablen Lösung für die Bewohner macht!
- Hausprojekt
- Stahlkonstruktion IPE 160
- Decke aus OSB-Platten
- Ausführung des Dachs und der Außenwände mit Fassade
- Außenschreinerei – 3-fach verglaste Fenster (einseitige Farbe) und Außentüren
- Grundstandard
- Isolierung der Wände und des Dachs mit PUR-Schaum
- Bodenausgleich
- Installation von Wasser- und Abwasserleitungen + Heizung
- Elektroinstallation
- Einbau von Innen- und Trennwänden aus feuerfesten GK-Platten
Nutzfläche:
98,15 m2
Anzahl der Zimmer inklusive Wohnzimmer:
4
Raumhöhe:
2,79 m
Gebäude höhe:
5,90 m
Kontaktiere Uns
Kundendiesnt
Klient





