HANNOVER DOPPELSTÖCKIGEN
HANNOVER
DOPPELSTÖCKIGEN
- Hausprojekt
- Stahlkonstruktion IPE 160
- OSB-Plattenboden
- Erstellung des Daches und der Außenwände mit Hausfassade
- Außenschreinerei – Dreischeibenfenster (einseitige Farbe) und Außentüren
-
- Basisstandard
- Wand- und Dachisolierung mit PUR-Schaum
- Fußboden verlegen
- Wasser- und Abwasserinstallation + Zentralheizung
- Elektrische Installation
- Aufbau von Innen- und Trennwänden mit feuerfesten GK-Platten
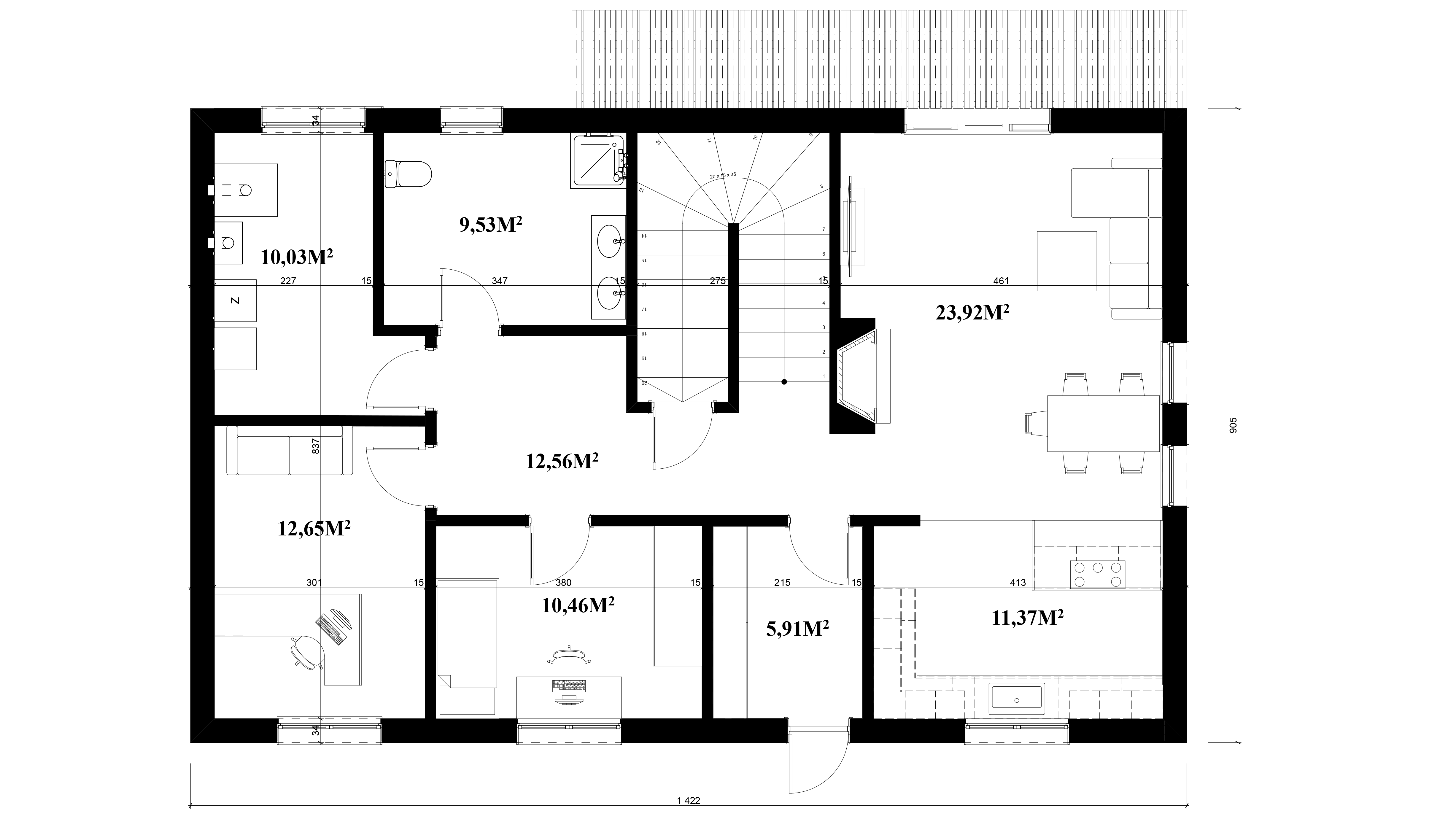
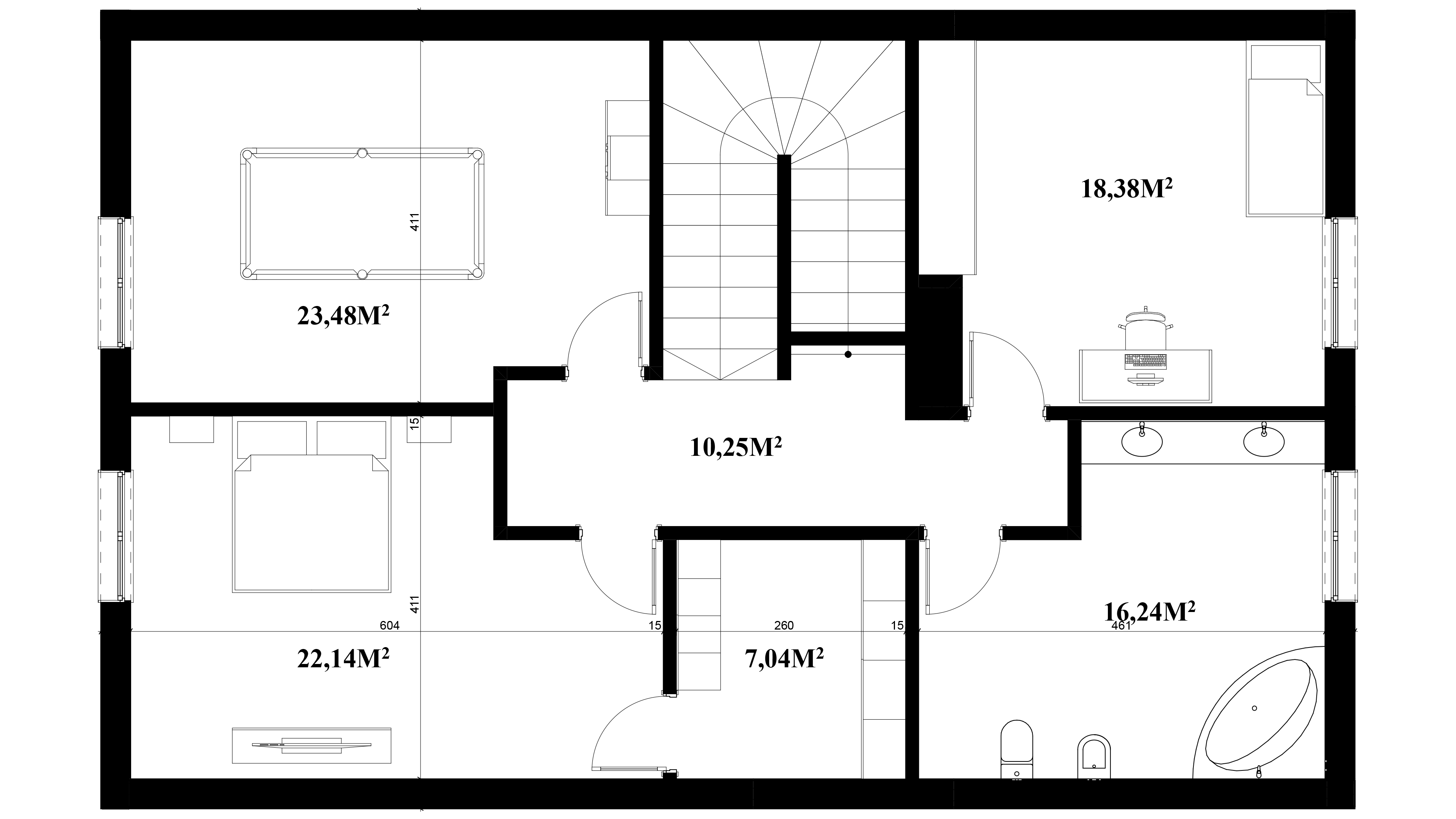
Wohnfläche:
193,96m2
Anzahl der Zimmer inklusive Wohnzimmer:
5
Kontaktiere Uns
Kundendiesnt
Klient









